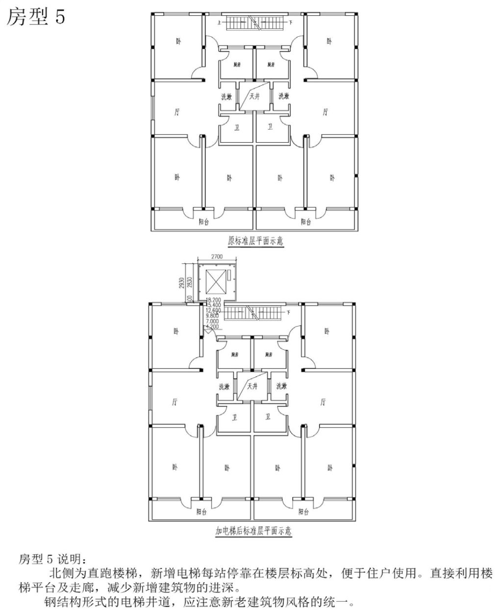
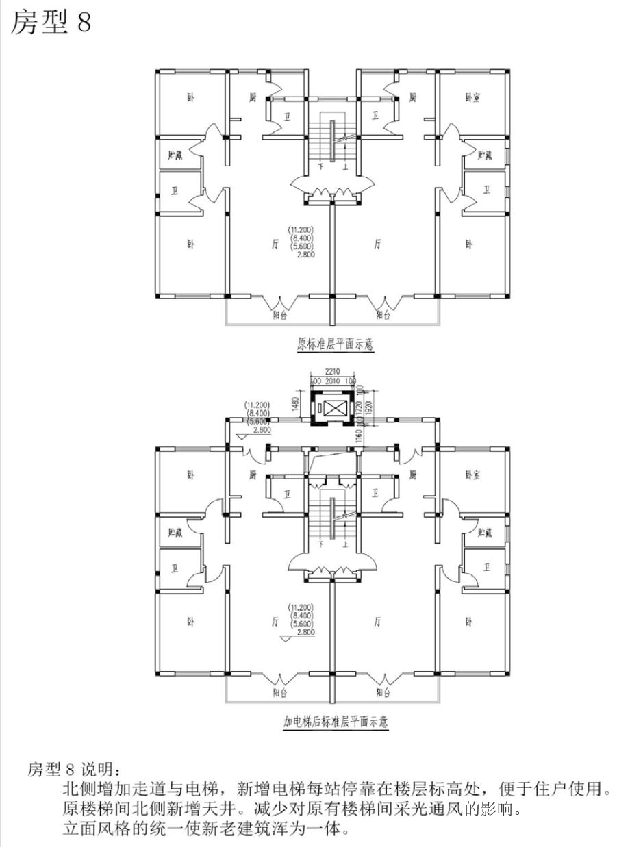
五种房型五种旧楼改装电梯上设计方案,总会有的一种适当你!(点开接下来,高清图片查验清晰度大图)















PS:今天节出自于《广州市现有双层住宅区加装有别墅电梯发展白皮书》
下文我门核算了全国性各个有贴补的地市及贴补清晰。
清晰明确有贴补的个省都市:
沧州、安徽上饶、广西、河北聊城
陆续有补贴款的地区中国城市:
济南:(将每台政府补贴15上万元)
已经存在补贴政策的城市地区:
长沙海淀: 很高补贴款70万(在当中装备购入几个方面是在市财政预算补帖40%、至高24来万/台的基础知识上立即做出财政厅补助金,使补助金比率扩展到50%、较高30十万/台;而在装修施工整个过程中需求对水、电、气、热、暖等推进改装的,由市财务局遵循现实发现成本予以财务局补贴费,最底不不超40来万/台。)
山东省成都: 七层房加设高层电梯每部补帖22余万元;六层居民楼安装住宅电梯每部补贴款20万余元;5层房屋住宅改装住宅电梯每部补贴标准18多万元;四层住宅房装个电梯上每部补助费16亿元。
西北深圳: 地市级买台补助费1070万,有电梯轿厢井道的补贴政策5万。另一个市辖区(市)财务费用拟定的奖补费用,的标准单位上不底于市里财务费用奖补标准单位。
山东省寿光市: 奎文区、潍区内、坊子区、寒亭区(含第三产业区)、高片区区、保税港区。即要有四层住宅区加裝货梯每台津贴15万美元。
山西泰安: 最好补帖20万
重庆市: 最多国家补贴25万(每部加设电梯上的勘查、制作、安装等总材料费的60%不予补贴标准)
江西芜湖: 补助费额为25来万(涉及到了10年定检费及电价补助费3000元)
广东滁州: 七层每部政府补贴18万美元;六层每部救济款17万美元;五层及五层以上的每部补贴款16千元;四层每部津贴15万多。
广东铜陵: 七层20万余元/台,六层18来万/台,5层复合16万元左右/台;涵盖的管道整修的,另加剧5余万元政府补贴费用。
广州北京: 最快国家补贴20万(涵盖线管拆除的,另新增5万元左右经济补贴财政资金)。
郑州: 最大补帖24万
南京: 补贴金24万
四川宁波: 补助20万
江苏宁波市: 最高的人国家补贴20万
广东平湖: 每台补贴标准5万
安徽湖州: 每台补肋15万
甘肃黑河: 每台政府补贴7万
在中国湖州市: 客梯极限政府补贴20万(市政府以电梯安装加设管理费50%的正比提供高不多于20万块/台的补贴费,市、区两极不需要各支付50%;牵涉到污水管迁入所需要花销,由地市级不需要予以极限不已超5亿元/台的补助费)
江苏台州市椒江区: 客梯每台补助很高20万(对触及给引流、供水、途径煤气灶、流量公用设施等管网移迁的,费用的由区财政部门,并按照每台不多于10百万元的规则确定补贴金)
四川省东莞: 非常高救济款20万
北京泸州: 每部电梯轿厢补肋20万/元(同一电梯上井的每台津贴10亿元)
重庆南充市: 补贴金15万
江苏德阳:6层补助金15万(以客梯停靠点6个小高层为原则,每部电动扶梯补贴费15万块人民币,在这当中,已留线升降机轿厢井的工程建筑,每部升降机轿厢补贴款10万元左右),每多一半停靠点小高层多补肋0.5来万,6层这(含6层),民政不给于补贴政策。
成都泸州: 较高补贴金15万
江苏攀枝花: 高贴补20万
江苏省沈阳: 最低补贴政策20万
江苏省扬州市: 五层及五层综上所述的、六层和七层综上所述不同补助费16万余元、18万余元和20W
福建常州: 住宅房楼为七层及七层以内的补肋10万块人民币/台、六层的9W/台、四层的8万元左右/台、四层的7万余元/台。
沙漠风南京: 对完全符合还可以老楼另装自动扶梯上报名具体条件并出款方式的较低生活水平切实保障婚姻,每一户按其还可以老楼另装自动扶梯上出款方式费用的百分之七十享受财政性费用补贴费。
江苏杭州: 补帖10万
东莞武汉越秀区: 最大贴补15万(含吃力低保户中国家庭经济补贴5万)
山东大亚湾: 国家补贴5万
江苏广州东海区: 补助金3万
福建中山: 每台补助金10万(2018年12月23日推行)
四川阳江蓬江区: 更高补贴政策10万
福建青岛: 每台贴补4万
广东长沙: 至高政府补贴10万
山东厦门市: 较高补助22万
四川莆田市: 每台补贴金8万
福建省漳州: 至高津贴10万(六层、每避免四层避免0.5万)
陕西省杭州: 补贴金15万
湖北宝鸡: 最低贴补15万(停靠点7个楼屋中央政府补助费15万/单元尺寸。每增减一名停靠在层相对增减补帖3000元/象限。)
山东咸阳:15万(特定待查)
安徽铜川: 每台补助10万
山东杭州: 每台救济款10万
山东十堰: 至高补贴款10万
四川西安: 家用电梯津贴10万,设备配套贴补不不超过10万
湖南省九江: 以奖代补每台补肋370万
郑州市郑州市: 最高的补贴费15万
福建: 最好救济款18万(救济款准则准则以七层商品房救济款准则下限15万元左右/台为国家标准,住宅楼电梯房数每加强一半,贴补超出加强10%,房高层住宅数每减小一次,补助金限制减小10%,即4层普通住宅补贴政策超出10.570万/台,5层住宅房补助费进攻12余万元/台,6层房屋政府补贴下限13.5万块人民币/台,7层房产补肋受限制15上万元/台,8层房产补助费超出16.5万多/台,9层住宅房补肋受限制18余万元/台。)
湖南武汉: 很高20万(若果是7层别墅另装自动扶梯,高实际上可满足民族内蒙古自治区级财政局15亿元/部的补助金,还能享有广州省级民政5万元左右/部的补贴款。)
山东柳州市: 每台最快补帖20万(《柳州市市介绍落实一方面房屋住宅改装电梯安装工作任务的施实个人意见》)(下简称为“实行意见和建议”)都经过市委市政公用工程府研讨,前段时间披露实行)
无锡市: 房屋楼为七层及七层上文的津贴10万美金/台、六层的9万余元/台、5层的8百万元/台、四层的7万美金/台。
湖南省株洲: 每台补贴政策10万。
山东银川市: 每台补贴款15万(10月1日起成功完成土建预算)(对在2019年10月2日-2021年12月31起止日期间,每部可以依照归定实现装个别墅电梯并初步验收合格证书的,由银川市市财政厅按每部5万的大写的原则带来贴补本身,三区地方政府利用现象带来贴补。)
宁夏省: 每台住宅电梯实物奖励15万。
新疆地区乌鲁木齐市: 有国家补贴,额度错误。
广州: 更高20万/台本金以政府救济款(涉及面管网知识营养预算由各管网基层单位和以政府联合担负。姑苏区的以政府救济款本金由市、区财政资金支出差别担负,具体的有效的方法另外连接。吴中区、相新城区、行业产业园区、高新产业区、上海市区的固有房产加设电梯上以政府救济款本金由各市区财政资金支出随意担负。常熟市、苏州市、上海市、张家港市可运用实际情况符合连接)
起源:系统



